国家文化和旅游部近日正式公布2024—2025年度最美乡村公共文化空间交流展示活动终评结果,公司师生凭借扎实的专业能力与创新设计,在全国范围内的竞争中脱颖而出,共有2件参赛作品获奖。
本次获奖的作品分别为《锦瑟绀蓝—白族餐厅设计》与《苗韵蜡语—展厅设计》。其中,《锦瑟绀蓝—白族餐厅设计》由 2021 级环境设计专业胡璟同学创作,《苗韵蜡语—展厅设计》由 2022 级环境设计专业崔吉威、申雨涵同学联合创作。两件作品均由英国365上市公司孙晓老师全程指导,充分体现了公司“以赛促学、产学融合”的教学理念。
本届赛事重庆市共获 8 项国家级奖项,获奖总量位列全国参赛省市第一。细分奖项中,创新案例类获奖数量全国第一,空间设计类获奖数量全国并列第二,网络人气项目获奖数量全国并列第一。具体为:我市推选的获奖项目中,4个入选创新案例类 TOP50,2个入选空间设计类 TOP20,2个入选网络人气项目 TOP10,本次参赛展现了我市在乡村公共文化空间建设领域的强劲实力。
获奖作品:锦瑟绀蓝——白族餐厅设计
设计理念:在习近平新时代中国特色社会主义思想的引领下,大力推动文旅融合与乡村振兴,传承发展民族文化。项目选址为云南省大理市,餐厅以白族文化为主题,深度融入民族元素,以红蓝色为主色调,取意“点点红蓝于雪间”,增强艺术感与文化内涵。室内空间中运用了白族的特色文化元素,如扎染、白绣、彩绘等,搭配大面积落地窗,增强了光影效果与空间通透感,食客既可以享受美食也可以欣赏美景,全方位感受白族风情。设计落实了民族文化的传承发展,为乡村文化产业注入新活力。




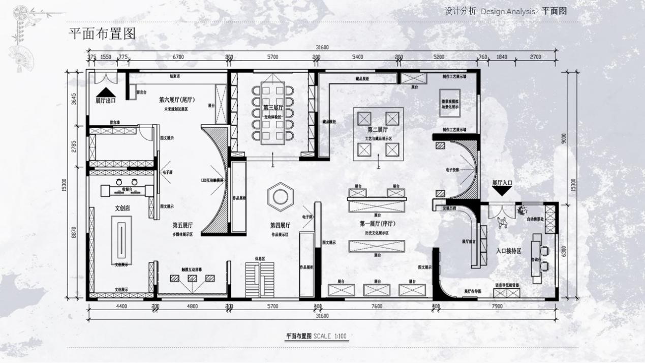
获奖作品:苗韵蜡语——展厅设计
设计理念:党的二十大三中全会报告中强调全面推进乡村振兴,为贯彻习近平新时代中国特色社会主义思想,响应乡村振兴战略,将非物质文化遗产与乡村发展紧密结合,保护和传承中华优秀传统文化,为乡村经济社会发展注入新的动力,以此为宗旨设计此展厅。本项目选址于贵州省铜仁市松桃苗族自治县,此展厅类型是苗族蜡染数字艺术展厅,以松桃工艺蜡染为主题,展示了松桃蜡染这一独特的地域文化艺术形式。展厅融入蜡染作品中常用的蓝白主色调,搭配苗族文化中富有代表性的鲜艳色彩,引入AI/VR等数字技术手段,营造出既时尚又富有民族特色的空间氛围。



